为什么要刷白墙?全屋刷成大白墙好处太多了
有人问博主为什么要刷白墙相关情况,通过整理给大家分享一下,希望对您有所帮助。
白色,在众多颜色中最不起眼,甚至被人认为是“无色”,可在实际生活中,白色真的无处不在。就好像把全屋刷成大白墙,好处真是太多了,看着大方敞亮,简约又耐看,让小屋也能变成大户。
因为白色最主要的特色就是清新、素净、透彻,它不管是搭配高饱和度色彩还是配素雅的软装,都可以让家看着有层次感,就像现在很主流白墙配原木地板,简简单单,但就能让人回味元穷。
是的,本期的这套装修,乍一看没有什么特别的,全屋刷大白、铺原木地板的简约风,但细细看来,整个家的设计都让我耳目一新。
设计亮点
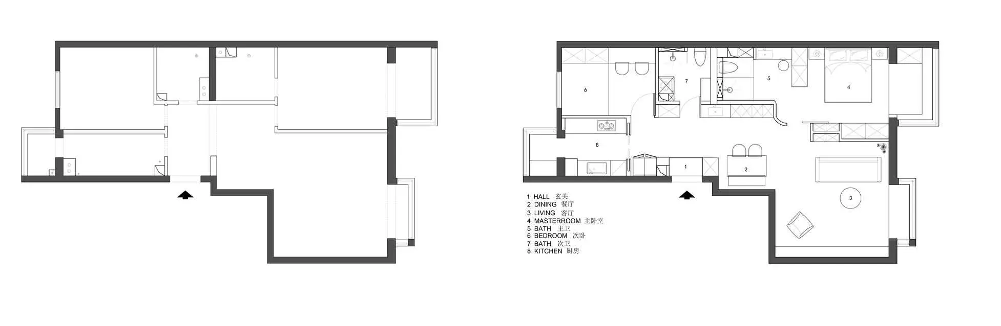
原始空间中规中矩,100平方两室两卫结构,对未来的家,爱宅家的年轻夫妻俩人希望整体风格是那种温柔简约的气质;并且收纳空间要多,喜欢家里干干净净的。
那这些正好与白色气质相符,设计师根据二人需求,将户型图做了不少完美的改造,现在再来看平面布置图,不论谁看了,都觉得把空间利用到了极致,真想给他们点个赞!
玄关
利用地暖的优势,打造了下沉式玄关,在进门的右手边以一个柜子作为玄关的主要收纳,并且特地做了一点镂空设计,可以让光线更加好的同时,让进户没有压抑感。
玄关进来向右转就是客餐厅空间,很显然,整个空间的调性是以白色为主基底,地面通铺原木地板,简单干净,甚是敞亮大方。
客厅细节
来看客厅设计,全屋大白整让空间有一种“家徒四壁”的感觉,满目的简洁清爽,再加上无主灯的设计,让空间有一种被放大的视觉效果。
与常见的电视背景不同,这个背景采用了更自由、更灵活的设计,那就是用了轨道门推拉移门的形式,实现开与合。当完全把轨道门打开的时候,这就是一个传统的客厅,有三件套的组合,当轨道门完全闭合时,又将电视机完全隐藏起来,整个空间的氛围又完全不同了,因为左右的层板可以放书籍,这样就为两夫妻营造出学习阅读模式。
沙发后面的绿植,与墙上的壁灯,点缀得恰到好处,绿色的加入,更是让空间有了清新且富有生机,而黑色的壁灯,它打破白墙的沉闷,注入稳重的气息,当然它也是晚上最佳的氛围灯。
在收纳方面,也是发挥出了极致设计,除了电视背景强大的收纳外,在沙发后面还做了嵌入式的书柜,在它的背后,主卧室里也做了收纳柜,总之,要把室内实现最大化,才不浪费每一寸面积。当然我还看到了一面弧形柱体,利用弧形设计来增加空间层次感,从而不会觉得空间单调无趣。
餐厅细节
餐桌就放在玄关柜的背面,轻巧质朴的原木搭配沉稳的桌腿,从材质上就点缀出层次感,更加耐看。
餐厅里的设计也十分简单,白色空间没有一丝多余的设计。
厨房细节
这里最大的改造就是将厨房面积扩大了,占用一点次卧室空间后,可以设计成平行的橱柜,夫妻两人同时烹饪也不觉得挤。
厨房依然是简约的白色调,白色哑光橱柜有一种低调简约的质感;顶面也是用防水石膏板做的大平顶,更显得极简大气。
入户第一视角
这是正对大门的第一视角,也是家里的走廊,可见设计不俗,一整排的白色,其中包含次卧室和卫生间的隐形门设计,除此之外,从左至右分别是家政柜、卫生间干区浴室柜和餐边柜,超强的收纳系统令室内保持高度的整洁。
主卧室
两个人的休息区设计,同样是如此的简洁干净,整体还是白色为主,原木色作辅助,家具、寝具都尽量化繁为简,营造一种最平静舒适的休息氛围。
现在看来,全屋刷成大白墙好处真的是太多了,干净纯粹,不论是与高饱和度色彩还是素雅的软装,都很配,像她家这样的与原木组合,更是显得温馨与简约的力量。
主卧室里面的卫生间墙体全部拆除,打造成三分离的设计,确实把干区和湿区分开,能享受更便捷的洗漱。
说在最后
像这样的全屋大白墙式的简约装修,深受到许多年轻人的喜欢,这样的风格可以增加空间的开阔感,局部用木色、灰色来沉淀,出来的效果非常不俗,如此搭配十分凸显年轻人的个性。喜欢这种全屋大白墙的简约风格的朋友,可以参考一下。




















